DEFISCALISATION LOI PINEL METROPOLE
Réduction d’impôts jusqu'à 32 % du montant de l'investissement **
** 32% si 12 ans de location et Calculé dans la limite d'un investissement maximum de 300 000 € par an (voir onglet "infos loi Pinel")
MONTPELLIER (34)
HABITER OU INVESTIR
Résidence principale
Investissement "LOI PINEL"
La résidence à Montpellier
Dans le Sud/ Ouest de Montpellier la résidence s’élèvera au dessus d'un espace boisé et s'organisera autour d'un jardin intérieur, planté d’essences méditerranéennes.
Ecoles, commerces, transports, services à proximité immédiate.
Les appartements du studio au 4 Pièces avec de beaux volumes qui se prolongeront par d'agréables terrasses ou Loggias pourront être personnalisés.
Vous aurez la possibilité de personnaliser votre appartement en choisissant parmi 6 types d’ambiances conçues et proposées par une décoratrice et coloriste d’intérieur, celle qui vous convient.
Sols, faïence, peinture, équipements, autant de matières et de couleurs pour vous sentir bien chez vous en personnalisant votre appartement à votre image.
Ecoles, commerces, transports, services à proximité immédiate.
Les appartements du studio au 4 Pièces avec de beaux volumes qui se prolongeront par d'agréables terrasses ou Loggias pourront être personnalisés.
Vous aurez la possibilité de personnaliser votre appartement en choisissant parmi 6 types d’ambiances conçues et proposées par une décoratrice et coloriste d’intérieur, celle qui vous convient.
Sols, faïence, peinture, équipements, autant de matières et de couleurs pour vous sentir bien chez vous en personnalisant votre appartement à votre image.
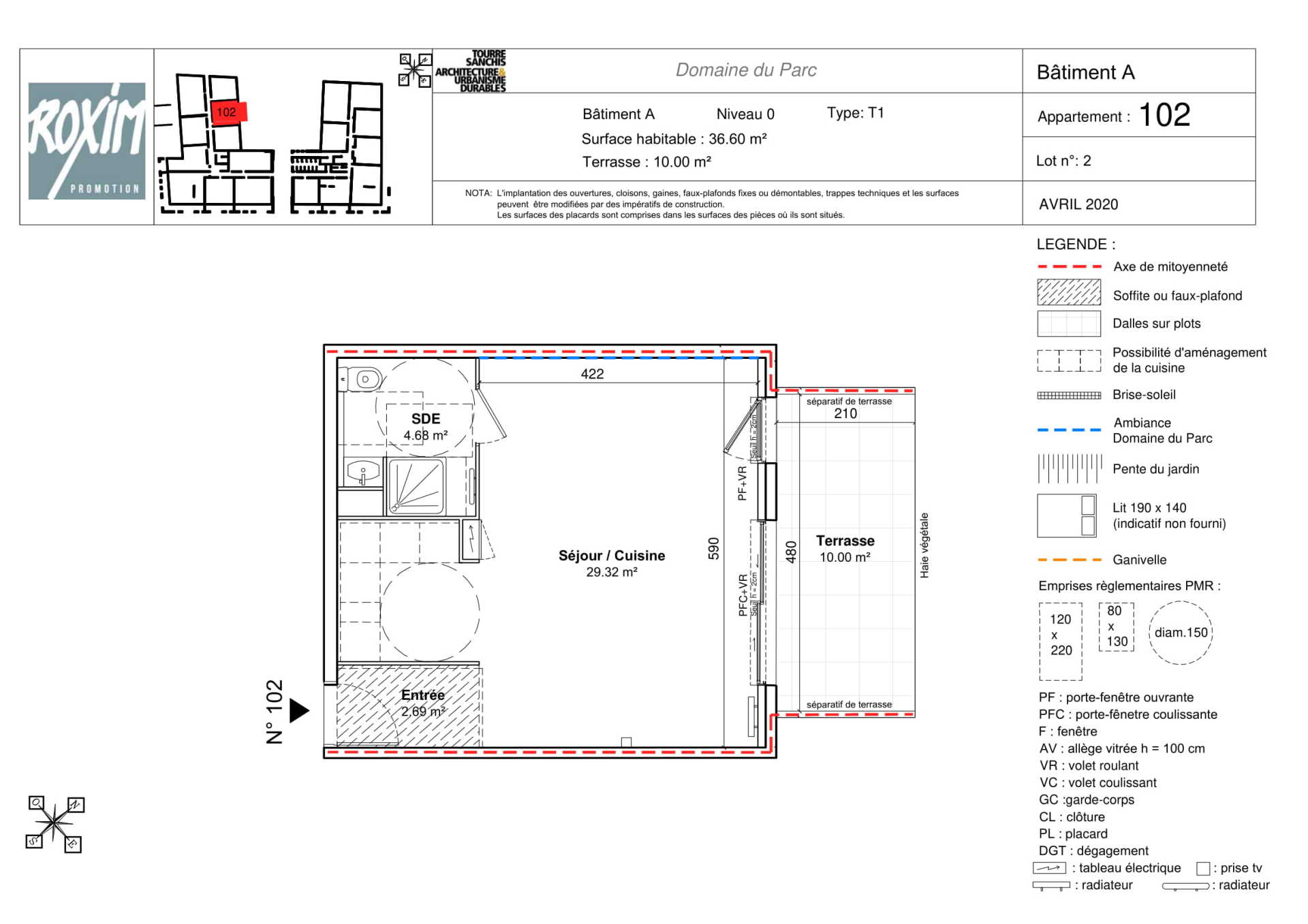
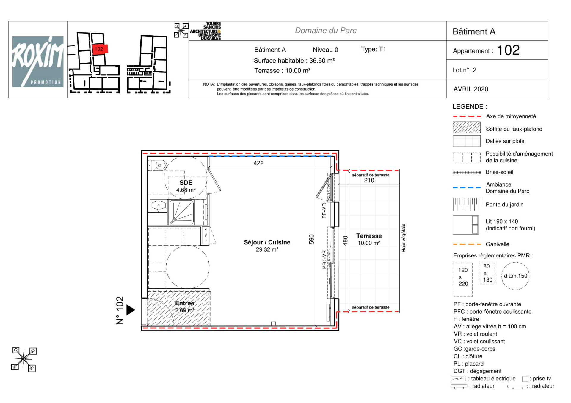
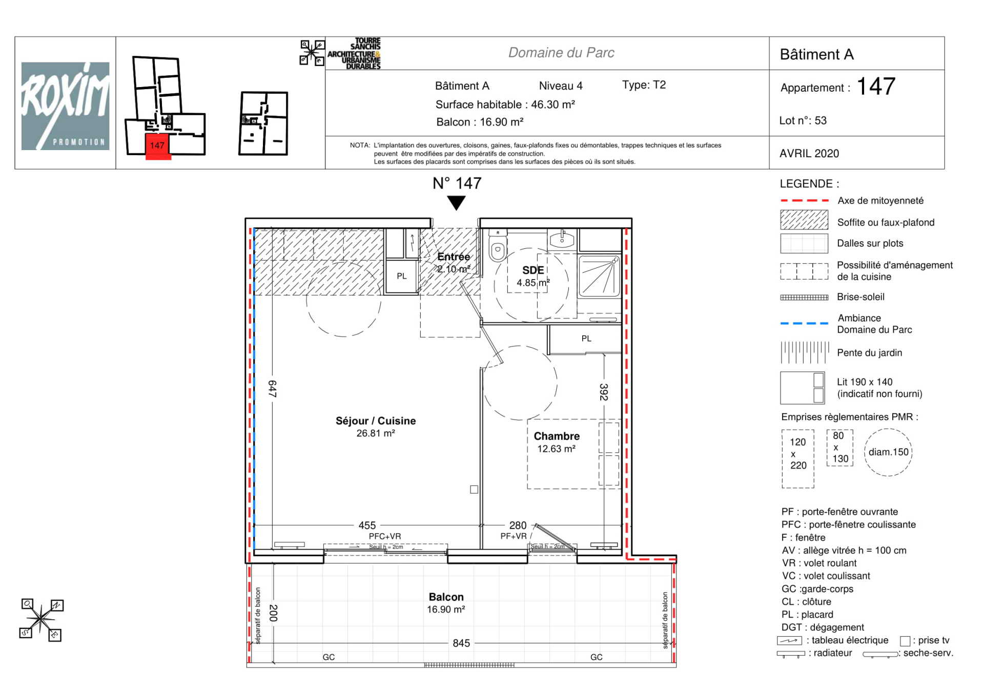
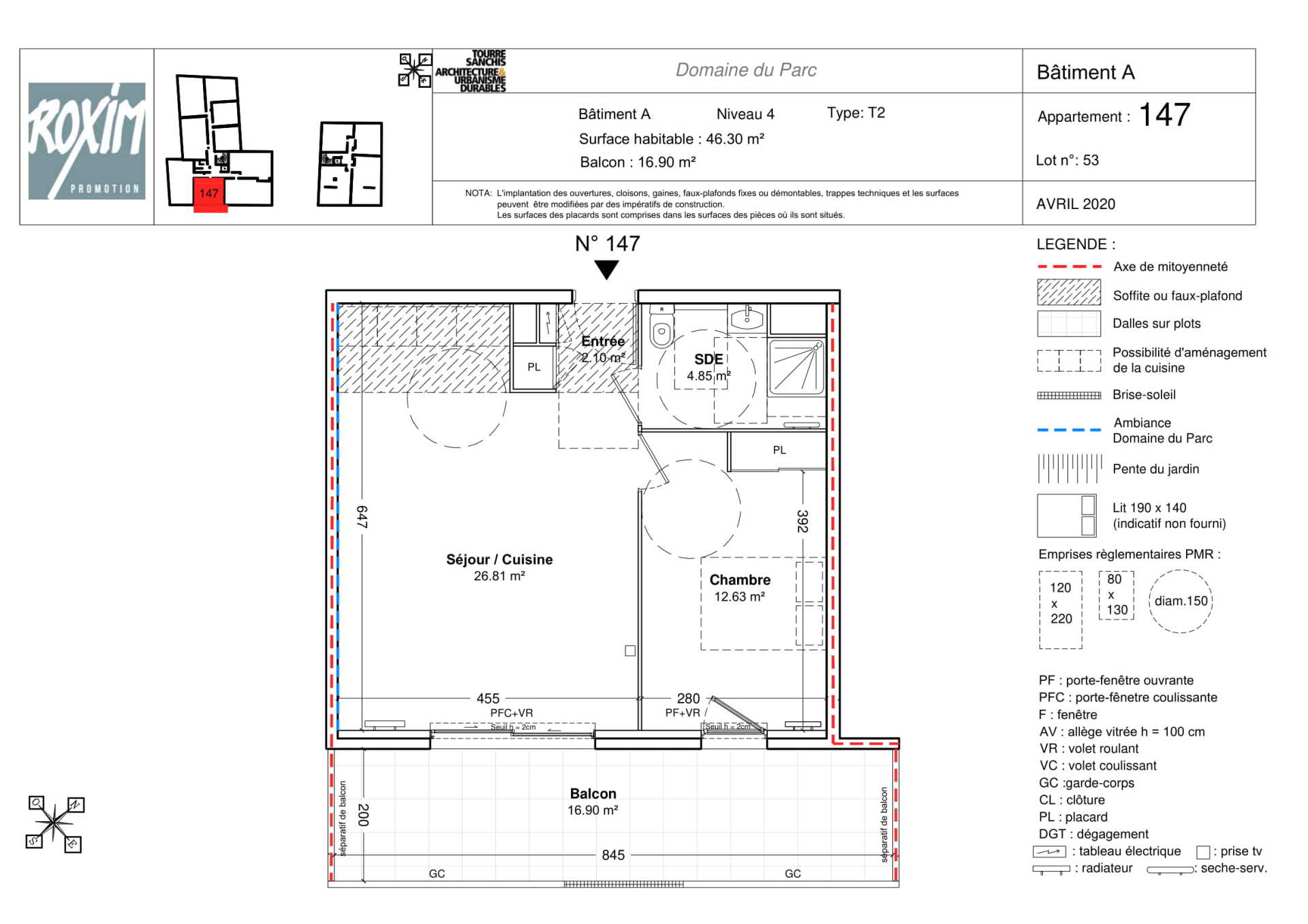
Surface : de 36 m2 à 119 m2
Pièces : Appartements du Studio au 4 Pièces
Livraison : 3e Trimestre 2022
Pièces : Appartements du Studio au 4 Pièces
Livraison : 3e Trimestre 2022
Prix (au 25/04/2021) : de 132.000 € à 454.000 € *
* Prix de vente suivant disponibilité des lots.
** Prix de vente hors frais de notaires et de prêt suivant disponibilité des lots : Nous Contacter
*** Plans suivant disponibilité des lots.
* Prix de vente suivant disponibilité des lots.
** Prix de vente hors frais de notaires et de prêt suivant disponibilité des lots : Nous Contacter
*** Plans suivant disponibilité des lots.
Renseignements et vente :
PRAGEC Immobilier
pragec@yahoo.com - rcpragec@yahoo.com
Tel : 06.21.91.17.69 - 06.70.40.87.06
Toutes les autres résidences sur :
Contactez-nous
Revenir aux autres résidences sur :












